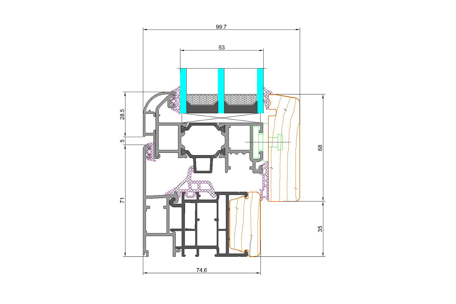
PROFILO COVER DESIGN 53
Il profilo Alulen Cover permette di avere finestre con più luce naturale, grazie alla maggiore superficie vetrata del 10%. Le guarnizioni Tubolari insieme al profilo in poliammide sul telaio garantiscono una migliore performance termica. La personalizzazione dell’estetica esterna crea uno stile unico.
PRESTAZIONI UNICHE IN OGNI DETTAGLIO
Trasmittenza termica W/m2 K
Calda d’inverno, fresca d’estate: (UF: 1,4/1,6 | UW: 1,0/1,4 )
Tenuta dell'acqua
Niente infiltrazioni, anche con forti piogge: Classe E 750
Permeabilità dell'aria
Spifferi zero ed aria fresca garantita: Classe 4
Tenuta al vento
Stabile e sicura contro ogni vento: Classe C4
Isolamento acustico
Silenzio e privacy, fuori i rumori: RW= 42 dB
REALIZZALI SU MISURA
Dalla progettazione alla posa, seguiamo ogni fase con professionalità e precisione.
In questa selezione di lavori completati puoi vedere come le nostre soluzioni in legno‑alluminio siano capaci di coniugare estetica, efficienza energetica e comfort abitativo, adattandosi perfettamente alle esigenze di ogni cliente.
Completa il modulo e contattaci per un preventivo

Richiesta per PROFILO COVER DESIGN 53
Ti invitiamo a completare il modulo prestando particolare attenzione a ciascuna indicazione riportata nelle istruzioni sottostanti, verificando che tutti i dati inseriti siano corretti, aggiornati e conformi a quanto richiesto.





